项目地址 |十里长江
装修风格 |现代意式风
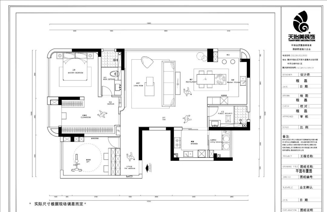
项目面积 |120㎡
整装价格 | 16W
包含内容 |设计;全屋定制衣柜;主材(门、橱柜、洁具、瓷砖、地板、铝扣板吊顶等);辅材(水管、漆、强弱电、防水、石膏板、门槛石等);人工(泥作、木作、漆作、水电等)
选用材料 |索菲亚橱柜衣柜、塔塔木门,箭牌淋浴隔断,美标卫浴、马可波罗瓷砖,飞利浦弱电线、阿尔贝娜砖石高档墙面漆、龙牌石膏板、日丰水管等……
本案布局方正有序,设计上以现代意式的‘通透哲学’为核心,弱化墙体阻隔,通过材质的统一与线性的视觉牵引,将客厅、餐厨、融为连贯的整体。无阻的视线与动线,确保了空间的流动性与功能的完备性,诠释了意式美学对自由与秩序的兼收并蓄。








兴家网,专注人工智能装修解决方案
联系我们
公司地址:重庆市两江新区龙溪街道松桥支路1号
咨询热线:4000-726-987
商务合作
微信公众号
免责申明:本网站部分内容由用户上传,如权利人发现可能误传其作品时,请及时与本站联系。
重庆装兴家科技有限公司 兴家网 版权所有 Copyright @ 2026 www.zhuangxingjia.com All rights reserved.